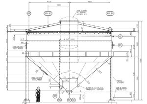
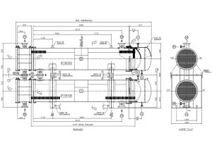
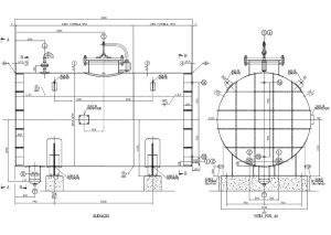
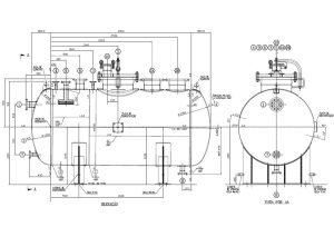
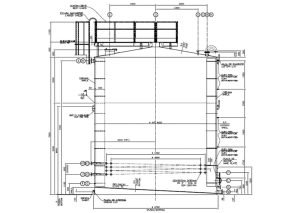
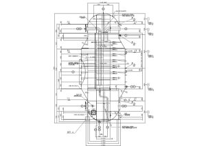
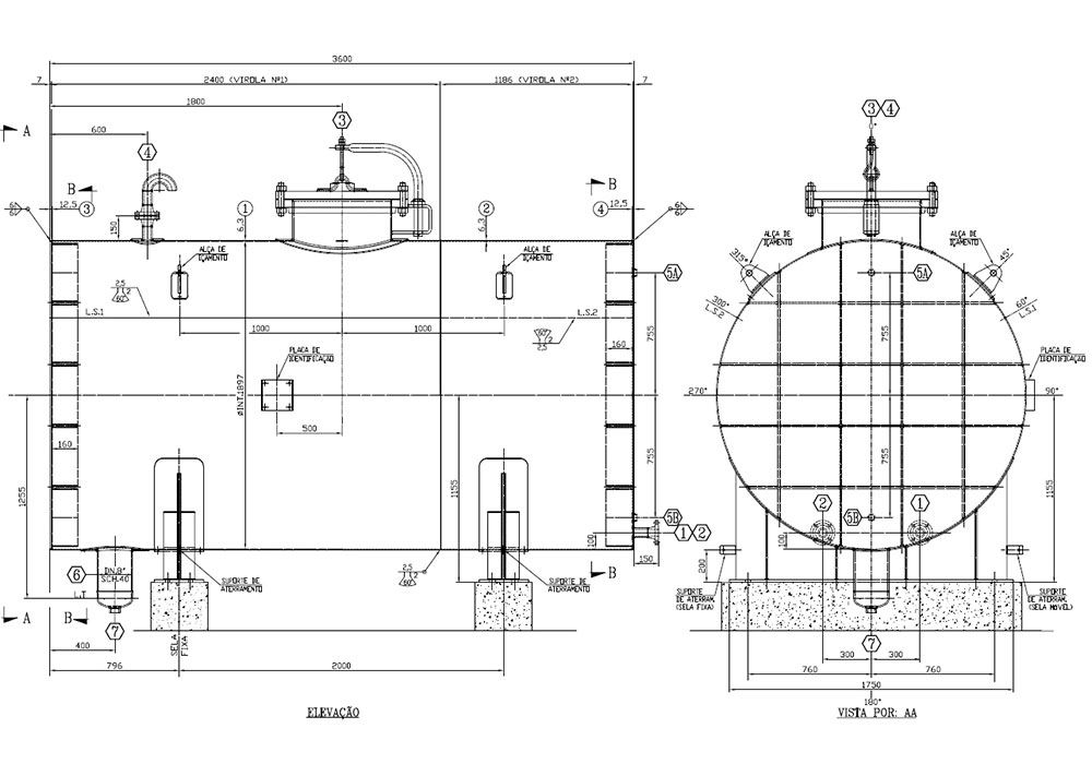
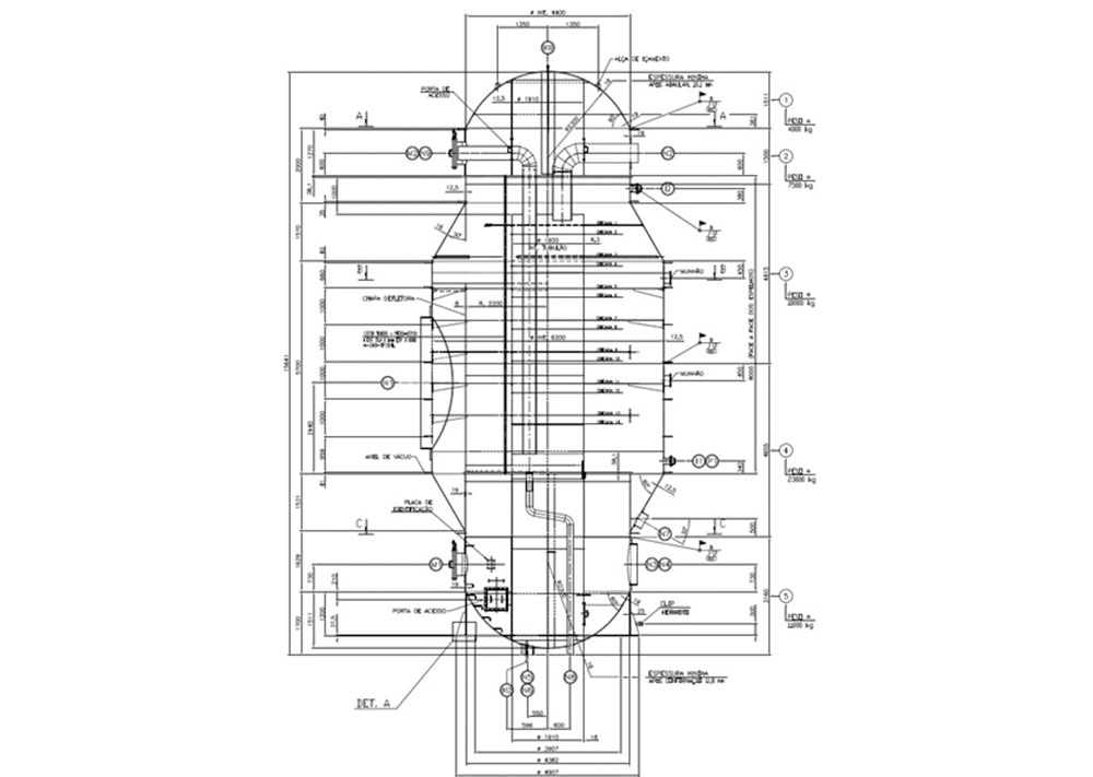
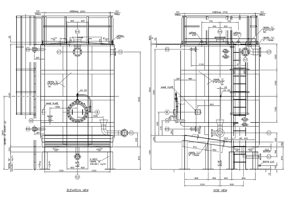
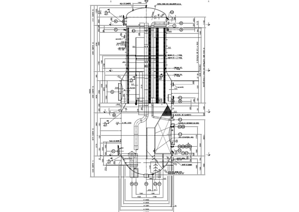
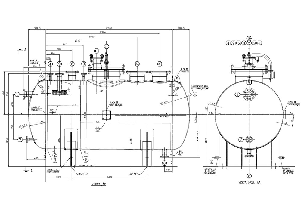
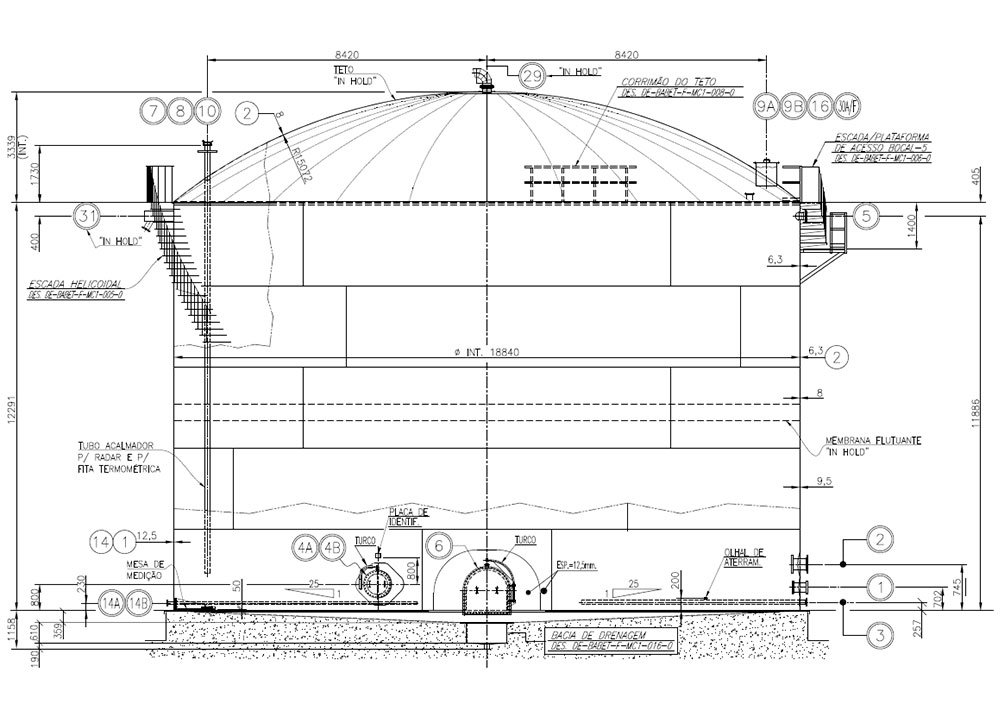
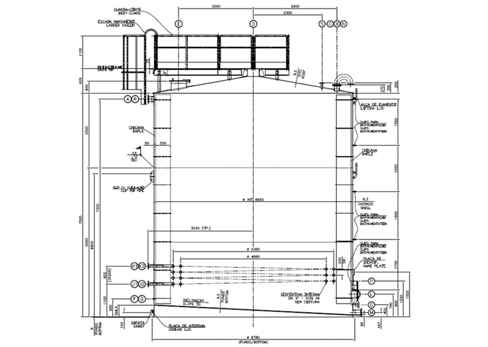
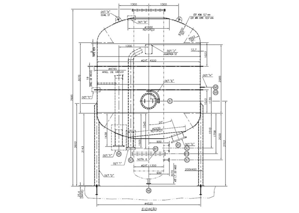
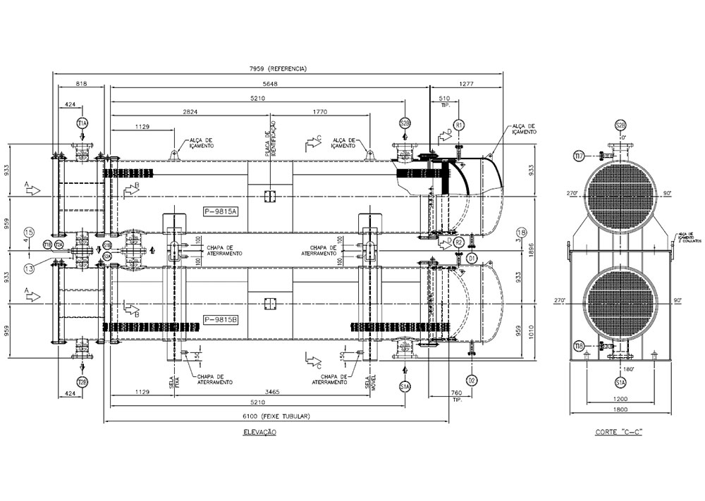
Os Desenhos de Detalhes desempenham um papel fundamental na engenharia, garantindo precisão dimensional, clareza técnica e total conformidade entre projeto e fabricação. Na Engefisic, elaboramos desenhos detalhados com alto nível de rigor, representando cada componente, junta, solda, espessura, tolerância e especificação necessária para assegurar a correta execução de cada equipamento ou estrutura. Com processos alinhados às normas técnicas e utilizando ferramentas avançadas de modelagem, nossos desenhos oferecem informações completas para fabricação, inspeção e montagem, minimizando dúvidas e garantindo eficiência em todas as etapas do projeto. O resultado é um produto final mais seguro, preciso e totalmente alinhado aos requisitos operacionais de cada cliente.






















